Fujivista Bright and Light Small Home Domestic Stair Lift Elevator Home Lift Elevator

Customization: Available
Driving Type: AC Elevator
Capacity: 500-1000kg

Product Description

Basic Information
Model NO.
JH-R02
Persons
6 - 10
Speed
1.00 - 2.00m/s
Control Mode
Collective Selective Control
Computer Room
Up
Elevator Door
Center Opening Door
Traction Machine
Gearless Traction Machine
Control System
Monarch Vvvf Controller
Product Description

Passenger Elevators: Designed for high-rise buildings, offering smooth, quiet rides, exceptional energy efficiency, and fully customizable cabins to match your architectural style.

Observation home elevator view 1

Observation home elevator

Observation home elevator view 2

Observation home elevator

Observation home elevator view 3

Observation home elevator

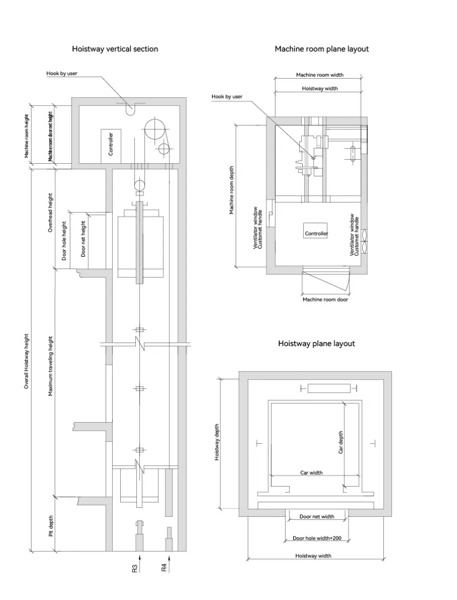
Small Machine Room Sketch & Installation Guidelines:

  • Approved drawings guide installation, meeting international elevator standards.
  • Ensure >50mm step and proper width for machine room to well holes.
  • Step between decor and door sill to prevent water entry post-installation.
  • Create buffer base under professional installer guidance.
Elevator technical sketch
Load (kg) Speed (m/s) Hoistway Size (mm) Machine Room Size (mm) Car Dimension (mm) Overhead (OH) Pit Depth (PP)
630 1.0 2000 × 1800 2000 x 3500 1400 × 1100 4500 1500
1.5 4600 1600
1.75 4700 1700
2.0 4900 2000

* Note: For reference only; final manufacture follows the specific contract.

After Sales Service
Standard Warranty: 12 months post-assembly (excludes transportation fees).
Global Support: 24/7 technical assistance and rapid spare parts availability.
Training: Comprehensive on-site or remote operation and maintenance training.
Company Profile
Manufacturing Facility

As a leading elevator manufacturer, we are ISO 9001 and CE certified. We export to over 10 countries, driven by dedicated R&D and a commitment to quality-backed products.

Factory View 1
Factory View 2
Why Choose Us?
  • • OEM/ODM capabilities
  • • Competitive pricing & bulk discounts
  • • Fast shipping & customs clearance
  • • Turnkey project solutions
Other Products
  • • Home elevators
  • • Freight elevators
  • • Sightseeing elevators
  • • Specialized lifting solutions
Frequently Asked Questions
Q: How to handle installation post-purchase?
A: Detailed manuals and technical drawings are provided. You can hire local teams, and our engineers offer remote guidance throughout the process.
Q: How is damage risk during sea freight managed?
A: We use reinforced wooden crates and anti-rust packaging. Additionally, full insurance is provided under CIF terms to protect your investment.
Q: What is the timeline for a customized elevator?
A: 1. Design: Proposal in 3 days after hoist-way details. 2. Production: Starts post-deposit. 3. Delivery: Ships approximately 15 days after balance payment.
Q: What are the standard payment terms?
A: We typically require a 30% deposit to start production, with the remaining 70% balance due post-production and prior to shipment via T/T.
Q: What additional costs should be considered besides the quote?
A: Depending on Incoterms (FOB/CIF), you should consider local import duties, customs clearance fees, inland transport from the port, and local installation labor.
Q: Are your elevators compliant with international safety standards?
A: Yes, all our elevator systems are manufactured to meet ISO 9001 and CE certification requirements, ensuring global safety and quality compliance.

Related Products